Skip to content Skip to sidebar Skip to footer

Pool Architecture Drawing: A Comprehensive Guide In 2023


Pool Design Drawings sample pool plans, decks ground pools and design
Pool Design Drawings sample pool plans, decks ground pools and design from alwariet.com

The Importance of Pool Architecture Drawing

Building a pool in your backyard is an exciting project that can increase the value of your property while providing a relaxing space for you and your family. However, before starting the construction process, it's crucial to have a detailed pool architecture drawing. This drawing serves as a blueprint for the construction team, ensuring that everything goes according to plan.

The Basics of Pool Architecture Drawing

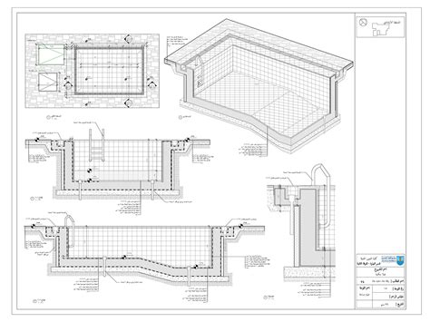
A pool architecture drawing is a technical document that shows the layout, dimensions, and construction details of a swimming pool. It typically includes information about the pool's shape, size, depth, and location, as well as details about the materials, equipment, and plumbing systems that will be used. The drawing is created by a pool designer or architect and is essential for obtaining building permits and ensuring that the pool meets safety standards.

The Elements of a Pool Architecture Drawing

A pool architecture drawing typically includes several elements, such as:

Pool Shape and Size

The pool's shape and size are essential elements of the drawing. The shape can be rectangular, oval, kidney-shaped, or any other design that suits your preference. The size will depend on the available space, the intended use of the pool, and the local regulations.

Pool Location

The location of the pool is another critical element of the drawing. It should be placed in an area that gets plenty of sunlight, is away from trees and other obstructions, and has easy access to the house.

Pool Depth

The depth of the pool is also an important consideration. It should be deep enough for diving and swimming but not too deep that it becomes unsafe.

Materials and Equipment

The drawing should specify the materials and equipment that will be used in the construction of the pool. This includes the pool's walls, floor, and coping, as well as the filtration system, pumps, and heaters.

The Benefits of Pool Architecture Drawing

Having a detailed pool architecture drawing offers several benefits, including:

Ensuring Safety

A pool architecture drawing ensures that the pool meets safety standards and regulations. This includes the depth of the pool, the placement of safety features such as fencing and alarms, and the use of appropriate materials.

Reducing Costs

A detailed pool architecture drawing can help reduce costs by preventing mistakes and ensuring that everything is done correctly the first time. This can save you time and money in the long run.

Visualizing the Final Product

A pool architecture drawing allows you to visualize the final product before construction begins. This can help you make any necessary changes to the design and ensure that you are satisfied with the final result.

Conclusion

A pool architecture drawing is an essential element of building a swimming pool. It ensures safety, reduces costs, and allows you to visualize the final product. If you're planning to build a pool in your backyard, be sure to work with a professional pool designer or architect to create a detailed pool architecture drawing. With the right planning and preparation, you can enjoy a beautiful and safe swimming pool for years to come.

Post a Comment for "Pool Architecture Drawing: A Comprehensive Guide In 2023"